|
||||||||||||||||||||||||
| 截油排水器 |
|
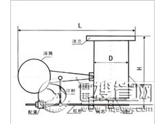
一、工作原理 本產品根據油水密度不同的特點,依靠浮筒在油水介質中的浮力差實現截油排水。當沉砂井里有水,且達到一定高度時浮筒上浮,通過杠桿只要較小的力就能將減壓閥打開,并使排水閥芯中的通氣孔打開,水從排水閥流入出水筒內,實現減壓,浮筒繼續上浮,將排水閥打開,水從排水閥進入出水筒內,由出水筒排水。沉砂井內的介質是油時,浮筒下沉,通過杠桿將減壓閥芯的通氣孔閉合,進而將排水閥關閉,阻止油品外泄。當天氣干干旱沉砂井內無水時,排水閥自動保持關閉狀態。當儲油罐區排放系統介質是油水混合狀態時,油水在沉砂井內分層,下部水由排水閥排出,油被截留在沉砂井內,只要收集沉砂井里的油即可。以此,實現了油灌區截油排水完全自動化。 二、產品特點 1、本產品采用無背壓的特殊設計結構,杠桿帶動閥針移動,使閥芯外壓力一致,杠桿繼續移動,針閥和閥門很靈活的一起開始排水,從而解決了減壓與排水閥不同步的現象,克服了關閉不嚴的缺點,確保灌區安全; 2、不需任何能源實現自動控制,安全、環保、經濟; 3、體積小、結構合理、無易損件、使用壽命長、不需補充水,使用維修方便; 4、有水時自動開啟,天旱無水時自動關閉,有油水混合物時實行油水自動分離,本設備24小時全天候工作,減輕了操作工下雨時開閥、天晴關閥的工作壓力,杜絕了跑油事故的發生。
1、公稱通徑:DN200、DN250、DN300、DN350、DN400 2、公稱壓力:≤0.25MPa 3、法蘭標準:H620592-97 4、適用介質密度:≤970kg/m3 四、型號規格說明 ![]() 五、產品結構
本產品直接安裝在油品罐區沉砂井內,直接與排水管連接,詳細尺寸參見中石化工業通用圖“總圖運輸通用圖集”SH104—2006《油品灌區水封閥安裝圖》。 1、打開包裝,按裝箱單清點設備; 2、先將出水筒法蘭與排水管彎頭下部法蘭連接: 3、將浮筒連接在水筒上; 4、安裝閥芯和杠桿連接浮筒與杠桿之間的撐桿; 5、安裝配重后即行投入使用; 6、請按以下視圖安裝:
1、油品罐區內通往沉砂井的排水溝必須設有隔柵,不得讓雜物流入沉砂井內,造成排水閥失靈。 2、安裝和清除沉砂井內的雜物時,工作人員上下要用爬梯,不得用浮筒作爬梯,否則會造成截油排水器閥門的泄露和杠桿的折彎或折斷。 3、要定時清除排水溝內的雜物和沉積物,否側會影響排水器閥的開啟和關閉。 4、要及時回收沉砂井內的積油。 5、本設備出廠前已調試好,不要自行調試。按照步驟組裝即可使用。 6、截油排水器的出水筒與排水管的連接必須保持垂直安裝。 八、常見故障處理方法
1、設計條件: A、載荷:按q=4KN/m考慮,不考慮汽車負載; B、土壤:容重r=18KN/m3,內摩擦角 C、地基力:承載力a-100Kpa; 2、沉砂井的建造尺寸:按照本書第七段的自動截油排水器安裝平面圖和自動截油排水器安裝立面圖進行; 3、沉砂井的深度設計預留了500mm的積砂深度,實施時可根據具體情況予以調整; 4、與沉砂井相連接的排水溝方位可視具體情況調整,原則為排水溝進入沉砂井的水流不得直接沖擊排水器浮筒; 5、排水管穿越沉砂井壁處設置一個冀環,冀環的外徑為排水管外徑加150mm,設置方法參見《給水排水標準圖集》S312; 6、排水管埋地部分采用無縫鋼管,用普通級瀝青底漆作防腐處理,沉砂井內排水管除銹后涂瀝青底漆及瀝青防腐漆; 7、本書安裝圖中的沉砂井C20混凝土工程量系按照沉砂井2M深度計算,采用時可根據實際情況調整; 8、爬梯及隔柵的制作,見下圖: ![]()
|
|||||||||||||||||||||||||||||||||||||||||||||||||||||||||||||||||||||||||||||||||||||||||||||||||||||||||||||||||||||||||||||||||||||||||||||||||||||||||||||||||||||||||||||||||||||||||||||||||||
通過認證 [誠信檔案]


